02107 'Talvo Pontresina' | LARX.architecture

02107 'Talvo Pontresina' Conversion of Historic Barn, Engadin Graubünden



client: private
year: 2021-2023
size: 160 m²
scope: design and execution planning shell&core renovation and interior

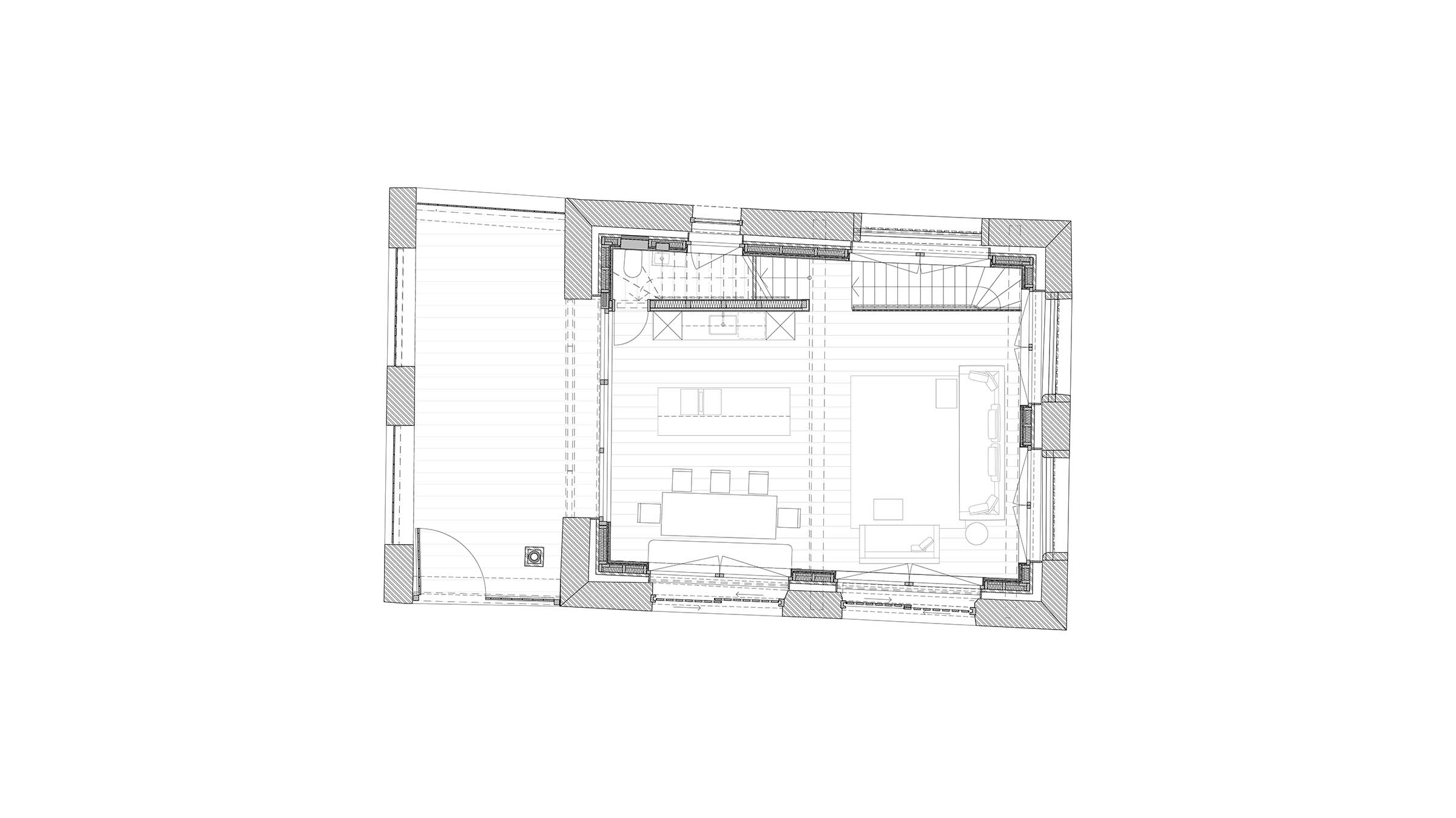
The conversion of a 300-year-old listed barn in the heart of a small town in Engadin, Switzerland into a single-family home is a special blend of traditional Alpine architecture and modern design. The three-story building was thoughtfully designed to maximize the use of space while incorporating details which resemble the old hay barn. The exterior of the barn, constructed of local wood and stone covered with lime plaster, has been carefully preserved to maintain its historic integrity. Inside, the open floor plan and high ceilings create a spacious, airy feel. Large windows with flexible shades let in natural light. The basement floor has been converted into a sleeping area with comfortable bedrooms and a bathroom. The middle floor is a main open plan living, dining, and kitchen area with high ceilings and exposed timber structure. This floor also provides access to the attic floor with the master suite in a location that provides privacy. The use of natural materials and a neutral color palette adds to the overall feeling of warmth and coziness. The result is a beautiful and unique home that seamlessly combines the past and present, providing a comfortable blend of modern amenities and traditional charm.