02303 'BBCO Ostschweiz' | LARX.architecture

02303 'BBCO Ostschweiz' Vocational College Campus, Sulgen Thurgau



client: Stiftung BBCO
year: 2023
size: 10'000 m²
costs: 25.0 Mio CHF
category: competition entry, 2nd round

The vocational education campus is intended to be a place where cleanliness, naturalness, simplicity and clarity in teaching are paramount. The architectural design of the school campus should reflect these values.

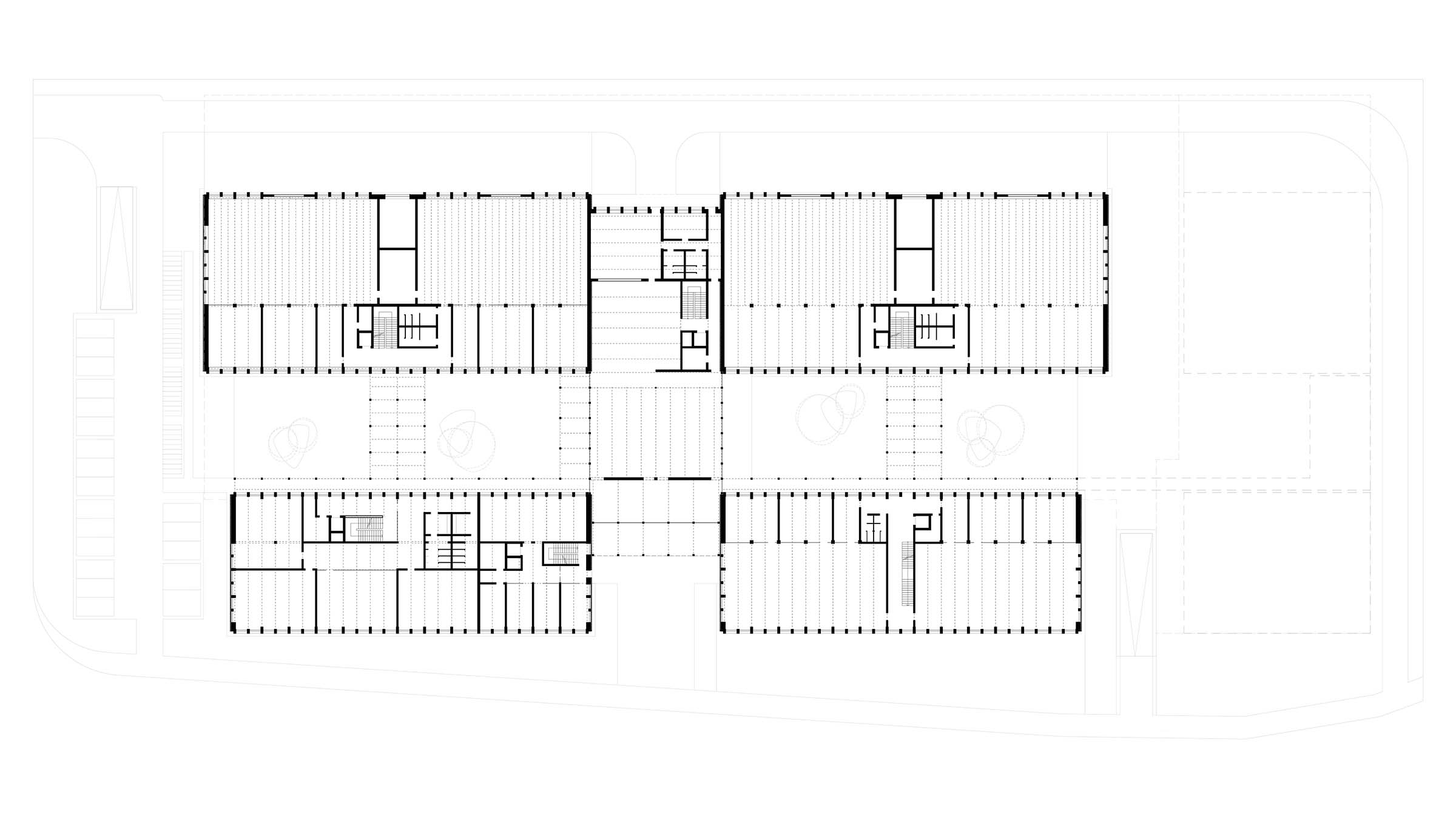
The low-footprint and low-volume building sections are units, each consisting of three floors above ground. The building sections along with the covered connections form interior courtyards that animate the interior life of the school. To ensure integration into the existing urban fabric, the buildings are lower along Auwiesenstrasse, and the short and restrained facades face Auholzstrasse. The positioning of the entrance promotes close relationships with the painters' technical school located vis-à-vis.

The four classroom buildings will be grouped around a central communal area with a refectory and a multipurpose hall. The multipurpose hall can also serve as a lounge area. The outdoor areas between the buildings will serve as public spaces and unheated lounging areas, and will be intensively used. Vertical circulation paths within each part of the building connect the underground garage with the classroom buildings, and allow for an efficient escape route concept. Traffic routes and pedestrian walkways are clearly separated.

The architecture of the campus will be characterized by simplicity and closeness to nature. The large windows provide generous daylight as well as a controlled, on-demand, natural fresh air supply for the mechanical ventilation system, which also promotes natural cooling at night. Motorized vertical awnings control sunlight and heat penetration while providing views to the outside.

The compact cubature, the deliberately reduced total area of heated common and recreational spaces, the choice of materials, the simple architectural and structural design, and the energy concept all serve to promote sustainability. Heat is generated using geothermal probes, and heating is provided by underfloor heating in the sound-insulated screed. In summer, the building is cooled by freecooling via the pipes of the underfloor heating or suspended cooling ceilings. The photovoltaic system on the flat roof will cover part of the electricity consumption.

The quality of the spaces is determined by well-ordered flexibility: the generous lighting, the neutrality of the façade design, the possibility for easy adaptation to the HVACSE requirements of the workshops, and the expandability in the planned architectural structure.

The design of the surroundings emphasizes the spatial structure with pedestrian paths made of paving stones, green areas, trees, flowers and shrubs. Driveways will be tarred and parking spaces will be laid with grass pavers. The exterior design will emphasize the quality of public spaces, integration with the built environment and a direct relationship with nature.